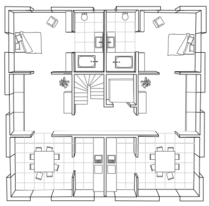
Barcelona Housing Unit Module

Housing Unit Model / With Viviane Zibung
Study of a modular housing typology exploring the concept of adjoining rooms and mirroring units. The project includes a plaster model made from layered, laser-cut cardboard at module scale, collages offering interior perspectives, and plans illustrating the housing typology.